2d Planning

Best 2d Planning Design Consultancy in Kuchaman City

⦿Design  ⦿Training  ⦿Consultancy

Approx Architects emerges as a leading force in elevating design standards and transforming spaces. Among its comprehensive suite of services, Approx Architects proudly offers 2D planning consultancy, providing clients with expert guidance and creative solutions to enhance the aesthetic appeal and functionality of their architectural projects.

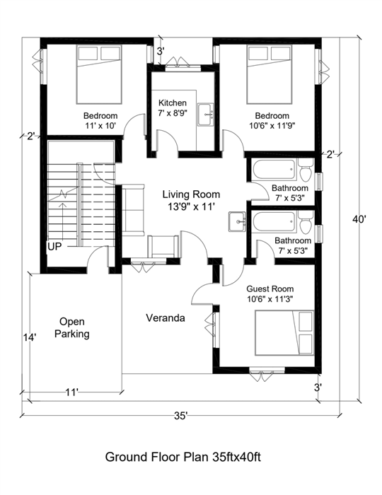
2D planning consultancy in kuchaman city is a cornerstone service offered by Approx Architects, aimed at assisting clients in visualizing and conceptualizing the exterior facades of their buildings. Leveraging their expertise in architectural design principles, spatial planning, and aesthetic considerations, the team at Approx Architects collaborates closely with clients to develop innovative and practical elevation designs that reflect their vision and aspirations.

The elevation of a building plays a crucial role in shaping its visual identity and overall appeal. Approx Architects' consultancy services in kuchaman city focus on enhancing the aesthetic appeal of architectural designs by carefully considering elements such as proportions, symmetry, materials, and detailing. By balancing form and function, the team creates elevations that are visually striking, harmonious, and timeless.

Approx Architects' consultancy services in kuchaman city prioritize spatial functionality and efficiency. The team analyzes the spatial requirements of the building and proposes elevation designs that optimize interior layouts, circulation patterns, and daylighting strategies. By integrating spatial considerations into the elevation design process, Approx Architects ensures that the resulting designs not only look good but also perform well in terms of usability and comfort.

Every architectural project exists within a unique context, shaped by its surroundings, site conditions, and cultural heritage. Approx Architects' consultancy services embrace contextual sensitivity, taking into account the local context and vernacular architecture to create elevations that resonate with the spirit of the place. Whether designing for urban or rural settings, the team seeks to establish a dialogue between the building and its context, fostering a sense of place and identity.

Approx Architects in all aspects of their work, including elevation consultancy. The team integrates sustainable design principles into their elevation designs, incorporating strategies for energy efficiency, passive cooling, natural ventilation, and greenery integration. By promoting sustainable building practices, Approx Architects contributes to the creation of healthier, more resilient built environments that benefit both occupants and the planet.

Approx Architects' consultancy services in kuchaman city provide clients with access to expert guidance and creative insights from experienced architects and designers in kuchaman city. The team collaborates closely with clients to understand their needs, preferences, and project goals, ensuring that the resulting elevation designs align with their vision and objectives.

Every architectural project is unique, and Approx Architects tailors their consultancy interior design services in kuchaman city to meet the specific requirements of each client and project. Whether designing for residential, commercial, institutional, or cultural projects, the team develops customized elevation designs that respond to the context, function, and aesthetic sensibilities of the project.

Approx Architects delivers elevation designs in kuchaman city of the highest quality that exceed client expectations. The team combines creativity, technical expertise, and attention to detail to create elevations that are not only visually compelling but also functional, sustainable, and contextually sensitive.

In addition to elevation design in kuchaman city, Approx Architects' consultancy services may include additional value-added services such as 3D visualization, material selection, cost estimation, and project management support. This comprehensive approach ensures that clients receive holistic solutions that address all aspects of their architectural project, from concept to completion.

Approx Architects' 2D planning consultancy services in Kuchaman City play a pivotal role in shaping the architectural landscape and enriching the built environment. By offering expert guidance, customized solutions, design excellence, and value-added services, Approx Architects empowers clients to realize their architectural vision and create buildings that inspire, delight, and endure. As Kuchaman City continues to evolve and grow, Approx Architects remains committed to advancing design excellence and fostering sustainable, contextually sensitive architecture that enriches the lives of its inhabitants and contributes to the vibrancy and identity of the cityscape.